

Large Barn
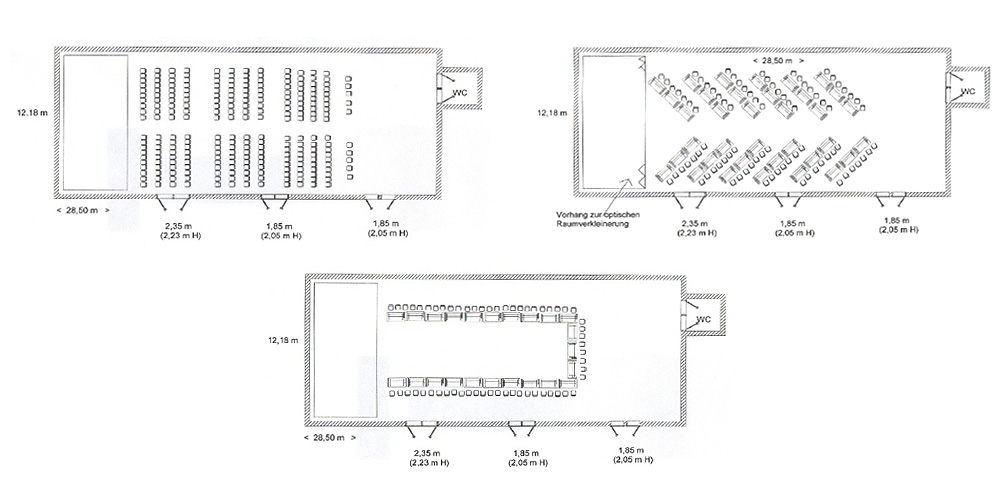
The large Barn offer almost 350 square meter of space for extraordinary events in a rustic ambiance yet with the most modern technology. It sets the perfect stage for anything from receptions to product presentation. With the large gates one has immediate entry into the halls.
room size 348m2 (28,5 x 12,2)
[ Click for increasing picture]


